Split Board Approves Chestnut LLC Rezoning by One Vote
Centennial Leland Farm to become Apartment Complex
By David Gordon, 5/28/21
Hello Neighbors:
In Brief:
-
On a 4/3 vote May 25th, the Board approved a preliminary rezoning from “Low Density” of 1 house per two acres to nearly 7 “units” per two acres; the majority claiming it was “compatible” with the surrounding neighborhood and “fit” the Master Plan.
-
Opponents said it was not harmonious and violated the Master Plan. They are considering a referendum on the ballot to overturn the expected rezoning, as was done successfully in 2005 on the same Centennial Farm owned by the Leland family.
-
The “preliminary” approval by the Board now goes back to the Planning Commission for review before coming back for a final vote (date unknown, probably this summer).
-
The Chestnut LLC developer plans to erect 208 rental apartments/condos and 61 rowhouses. The Master Plan specifically calls for single family residential on the site.
###
The Rest of the Story:
Voting to approve the preliminary Planned Unit Development (PUD) were Trustees Jacki Otto, Janet Chick, newly elected Supervisor Ken Dignan, and newly elected Trustee Josh Nelson.
Clerk Kathy Manley, Treasurer Lenore Zelenock and newly elected Trustee Nate Muchow all voted against the proposal at the NE corner of Whitmore Lake and N. Territorial roads.
Manley, Zelenock and Muchow wanted the proposal sent back to the Planning Commission (PC) for improvements – namely a development that was true to the Master Plan. Their main point was that the Master Plan calls for single-family homes, not apartments and rowhouses, which they said was more suited to land closer to Whitmore Lake.
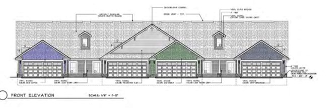
Because of the Board’s vote, the PC has much less leverage to negotiate with Chestnut on density or appearance of the project. For instance, the PC members who initially voted against the project, complained that all of the rowhouses have their garages facing the road, something they found both unwelcoming and unappealing.
garage – garage – garage – garage – garage – garage – garage – garage
This is “innovative”?
About 20 members of the public spoke during the Public Hearing, both for and against the project. Most of those speaking against the proposal lived in the area and argued that the project violated the Master Plan and placed the township in legal jeopardy from future developers.
They also voiced concerns about increased taxes to pay for services, impacts on the water table, increased traffic congestion at N. Territorial & Whitmore Lake roads (which is already pretty bad during rush hour and this project will add about 2,400 car trips/day, and crime.
They pointed to the diagram of the project, saying it was unharmonious and incompatible with the surrounding area, as required by the Master Plan and township zoning codes. The footprint of the 269 units covers about 35 acres, or 8 units per acre. That is 20 times denser than the 1 house/five acre zoning of the surrounding agricultural parcels.
The pro-Chestnut speakers claimed the density was 3.5 units/acre and therefore met the Master Plan, which envisions up to four houses per acre on the farm. Their calculation was based on all the acreage of the project, including areas on which the developer could not build. Even though the calculation fits, the Master Plan calls for single family houses on small-ish individual lots, not rental apartments/condos and rowhouses.
Decide for yourself if it is compatible or harmonious with an agricultural district?
(link here to the Chestnut Plan as presented at the Planning Commission on April 7, 2021)
http://www.twp-northfield.org/Agenda_Packet_Apr_7__2021_merged__2__merged.pdf
Warning: This is a 377-page document. The Planning Commission was given less than four business days to review it before voting.
One potential glitch was raised by Planning Commissioner John Zarzecki, who warned that the layout of the buildings – especially the apartments – violated of state fire codes and would require major changes. His warning went unheeded.
Once the PC work is done and outside agencies sign off (which is predicted to take months), the PC will either recommend approval or denial of the Final Draft and send it to the Board for action. Even if the PC votes against the project, the Board can still approve it.
The township planning consulting firm, McKenna Assoc., was on hand and was represented by its president, John Jackson. Nobody ask him how the 2019 Master Plan could be interpreted so differently, with some claiming the project met the Plan, others saying it was a clear violation.
About half of the pro-Chestnut speakers were out-of-towners including one Chestnut employee, two Chestnut contractors, a resident of a Chestnut rental property, and even the Livingston County Sheriff (!?!), and a pastor from Chelsea.
Aside from the claim that this plan fits the Master Plan, those in support said the apartment complex will help revitalize downtown Whitmore Lake and would add students to the enrollment at the Whitmore Lake school system which experienced a large drop since School-of-Choice became an option.
-30-


